Zde najdete všechny důležité informace k dopravě a doručení zboží na letiště. Připravili jsme pro vás podrobné instrukce, interaktivní mapu klíčových míst v areálu a možnost spuštění přímé navigace, aby bylo vše co nejjednodušší a nejrychlejší.

Letiště spolupracuje s lokálními i mezinárodními dodavateli, kteří musí splňovat přísné hygienické a bezpečnostní normy. Naši dodavatelé jsou pravidelně kontrolováni, aby byla zajištěna kvalita a bezpečnost potravin. To zahrnuje kontroly zaměřené na hygienu, skladování a přepravu potravin.
Potraviny skladujeme ve skladech vybavených pro udržení optimálních podmínek pro různé druhy potravin. Skladování zahrnuje kontrolu teploty a vlhkosti, aby nedošlo ke znehodnocení surovin.
Potraviny jsou následně distribuovány do jednotlivých stravovacích provozoven na letišti podle jejich potřeb a požadavků. Řidiči musí dodržovat pravidla silničního provozu, včetně Dopravního řádu LP v SRA zóně.
Zásobování
Hlavní sklad stravování – Zásobovací tunel T1
Vjezd přes vrátnici č.11
Doklady pro vstup:
- Občanský průkaz,
- Cestovní průkaz totožnosti,
- Dodací list
Maximální povolená výška pro průjezd z 3,1 m ve spojovacím tunelu mezi T1-T2
Kontakt do kanceláře hlavního skladu
+420 220 114 734
+420 220 114 772
Pracovní doba skladu
Pondělí - Pátek 6:00-16:00
Sobota - Neděle 6:00-15:00

Pro snadnější nakládku a vykládku jsou k dispozici nůžkové zvedací plošiny.

Zásobovací rampa budovy APC
Vjezd přes závoru u budovy APC
Doklady pro vstup
- Občanský průkaz,
- Cestovní průkaz totožnosti,
- Dodací list
Kontakt do kanceláře
+420 220 114 033
Pracovní doba skladu:
Pondělí - Pátek 7:00 - 15:00hod

Zásobovací prostor Hangár F
Vjezd přes vrátnici č.19
Doklady pro vstup:
- Občanský průkaz,
- Cestovní průkaz totožnosti,
- Dodací list
Status "známého dodavatele letištních dodávek"
Kontakt do kanceláře
+420 220 113 949
Pracovní doba skladu
Pondělí-Pátek 6:00-16:00
Sobota-Neděle 6:00-16:00

Kontrola letištních dodávek na nákladové rampě Terminálu 2
Základní informace pro dodavatele
Letištními dodávkami se rozumí všechny předměty, zásoby, zboží a materiál, které mají být prodány, nebo použity ve vyhrazeném bezpečnostním prostoru letiště (SRA). Každá letištní dodávka musí být před vstupem do SRA podrobena bezpečnostní kontrole. Pokud má subjekt sklad, nebo provozovnu v SRA, či se jedná o materiál, který je potřeba použít v SRA, musí touto kontrolou projít. Zboží, které má být prodáno/použito ve veřejném prostoru letiště, nebo v neveřejném prostoru Terminálu 1, není letištní dodávkou a nemusí být tím pádem podrobeno kontrole.
Zboží je zpravidla kontrolováno na nákladové rampě Terminálu 2, polohu rampy můžete načíst kliknutím na tlačítko "Navigace k cíli" níže. Do SRA může vstupovat v místě kontroly (další opatření již nejsou potřeba), nebo do SRA vstupuje přes vjezdovou vrátnici. Pokud je zboží kontrolováno na rampě a následně naváženo přes vrátnici, musí být celý obsah nákladového prostoru vyložen, podroben kontrole a až po kontrole nákladového prostoru vozidla opět naložen. Následně je nákladový prostor zapečetěn.
Výjimkou je stavební materiál, který má dedikovanou speciální vrátnici, kde probíhá celý proces kontroly za specifických podmínek.
Kontrola zboží na rampě Terminálu 2 je hrazenou službou, dle aktuálního ceníku. Za detekční kontrolu je účtován každý jednotlivý rentgenový snímek. Jednorázový poplatek je účtován v případě kontroly nákladového prostoru vozidla. Pro fakturaci je potřeba vyplnit objednávku služeb na daný rok. Fakturace probíhá jednou měsíčně popřípadě lze domluvit kvartální účtování, DUZP je poslední den v měsíci. Přílohou faktury je report z jednotlivých návozů, kde je uvedeno jméno společnosti, datum a čas návozu a počet provedených snímků.
Bezpečnostní kontrola zboží je prováděna primárně rentgenem, který umožňuje kontrolu palet. Zboží, které je na paletě v několika vrstvách, je ale obvykle potřeba rozložit do menších celků, někdy je proto prováděna po jednotlivých krabicích/baleních. Rozložení provádí řidič navážející dodávku. Pracovníci bezpečnostní kontroly nezajišťují nakládku/vykládku/rozkládání zboží. Je proto vhodné balit zboží po menších celcích. Na stanovišti je k zapůjčení manuální paletový vozík.
V případě potřeby dodatečné kontroly může být vyžadováno otevření krabice/balení. Řidič musí být schopen/oprávněn tuto krabici/balení otevřít. Pokud k tomu potřebuje speciální nářadí, je potřeba jej mít s sebou. Následně je zkontrolovaná krabice/balení přelepeno bezpečnostní přelepkou.
Pokud řidič odmítne poskytnout potřebnou součinnost, nemůže být zboží vpuštěno do SRA. Pokud řidič pokračuje do SRA, nebo je potřebná jeho součinnost při kontrole, musí se také podrobit bezpečnostní kontrole a být držitelem letištní ID karty.
Kontrola navážených letištních dodávek může být časově náročná. Dodávky jsou kontrolovány obvykle dle pořadí, ve kterém dorazily na stanoviště. Pokud naváží několik dodavatelů ve stejný čas, může docházet k delšímu čekání.
Při kontrole je potřeba pracovníkům bezpečnostní kontroly poskytnout potřebnou součinnost, zejména se identifikovat pro potřeby fakturace (název společnosti, jméno řidiče) a vědět, v jakém režimu je zboží naváženo (od toho se odvíjí proces kontroly zboží, případně vozidla a následná fakturace).
Je potřeba dbát pokynů bezpečnostních pracovníků. Pokud řidič odmítá při kontrole spolupracovat, není možné umožnit vstup zboží/řidiče do SRA.
Sklad centrálního nákupu
Pro účely snadnějšího návozu vašeho zboží na letiště je vám k dispozici služba s možností využití skladu centrálního nákupu. Nemusíte se tak starat o logistiku a navigaci v areálu letiště a zároveň se vyhnete bezpečnostním kontrolám. Neboť doručení napříč letištěm zařídíme za vás. Pokud budeme požadovat doručit zboží do tohoto skladu, bude taková informace obsažena v objednávce, pokud vám místo dodání neupřesníme jiným způsobem.
Službu centrálního skladu doporučujeme zejména pro následující druh nebo rozsah zboží:
elektro materiál, spojovací, hutní, stavební, sanita, drobná chemie, nářadí, zámečnictví, reklamní předměty
Naopak sklad není vhodný pro návoz potravin, tlakových lahví, nebezpečných materiálů nebo tekutin.
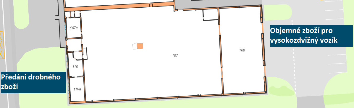
Sklad CNL
Vstup přes vrátnici č.1, areál st. letiště.
pro vstup je nutné předložit doklad totožnosti

+ 420 702 036 329
cnl.sklad@prg.aero
Pondělí - Pátek 6:15-14:00

Při příjezdu ke skladu je prostor pro příjem objemného zboží ihned po pravé straně. Tento prostor je zároveň určen pro dopravu zboží kamiony nebo velkými nákladními vozy. Naopak prostor pro předání drobného zboží je z druhé strany budovy a rozměrově je určen maximálně pro dopravu zboží dodávkou.
Skladování materiálu ve skladu CNL
Sklad slouží k ukládání materiálu dodaného „na sklad“ CNL a k jeho průběžnému vydávání do spotřeby ostatním organizačním jednotkám.
Nosnost podlahy je 500 kg/m2.
Příjem materiálu
Pro nejsnadnější manipulaci se zbožím doporučujeme vůz s plošinou a zboží na paletách. Vysokozdvižný i paletový vozík máme vlastní.
Pracovník skladu převezme materiál od dopravce s originály doprovodných dokladů. Překontroluje zásilku, počet kusů a stav zásilky. Skladník udělá příjem materiálu. Příjemce je informován o naskladnění jeho objednaném materiálu ve skladu, v případě katalogového zboží telefonicky.
Stavební práce
Společné datové prostředí a způsob komunikace
ACC (Autodesk Construction Cloud):
- výměna informací
- komunikační platforma
- agenda procesů
- Zřídíme automaticky všem externím kolegům, kteří jsou uvedeni v tabulce kontaktů.
- Z této adresy acc.no-reply@autodesk.com vám přijde výzva.
Tablety a telefony:
- Mobilní aplikace Autodesk Construction Cloud – nutnost pro práci v terénu
- Apple AppStore, Google Play
V ACC se bude odehrávat:
- Připomínkování a odevzdávání revizí DPS a čistopisu DSPS
- Připomínkování VDD
- Vzorkování
- Vady a nedodělky
- Zápisy z KD
- Schvalování – Technologický postup
- Schvalování – plán BOZP
- Schvalování – kontrolně zkušební plán
- Požadavky na informace (RFI)
- Zprávy koordinátora BOZP
- Záznam o předání staveniště a přejímce stavby
- Harmonogram výstavby
- Zařízení (Asset) a doplňování informací
V době realizace stavby budeme ukládat fotografie a videa do ACC – lze fotit přímo mobilní aplikací.
Komunikační kanály
CDE
- Zde jsou uloženy jednotlivé informační kontejnery
- Přístup dle rolí
- Používáme řešení od Autodesk
Revizto
- Pro zobrazení modelu a issues.
- Komunikace nad revizí dokumentace
- Prostorová koordinace
- Mračna bodů (laser sken)
- Evidování aktuálního stavu
Režim vstupu na stavbu – jednorázové a stavební vstupy, trvalé ID:
ID Karty:
Vydání trvalých ID karet je proces na delší dobu a je zpoplatněný. Čekací doba je cca 2 měsíce.
Trvalou ID kartu potřebují především:
- Zástupci GD (hlavní stavbyvedoucí, stavbyvedoucí, technologové, přípravář, mistři, stavbyvedoucí subdodavatelů)
- Externí konzultanti
Pro obdržení trvalé karty je potřeba učinit následující kroky:
- Žadatel podá žádost na ÚCL o tzv. Doklad o spolehlivosti.
- Absolvuje povinné školení A2 – Bezpečnostní povědomí. Které lze absolvovat až po vydání Dokladu o spolehlivosti, bez něj se nelze na Bezpečnostní školení přihlásit. Odkaz pro přihlášení a informace www.skoleni-lp.cz.
- Založení evidence vaší společnosti do Evidence oprávněných osob letiště - doporučujeme udělat současně s krokem č.1). Zhotovitel určí jednu nebo více osob, která komunikuje s Letištěm Praha a.s. ve věci žádostí o vydávání trvalých karet pro:
- osoby Generálního dodavatele
- všechny jeho Subdodavatele
Postup pro schválení osob k vyzvednutí jednorázového letištního identifikačního průkazu:
- Do předem zaslané tabulky (od PM) vyplníte osobní údaje (jméno, příjmení, datum narození, číslo dokladu totožnosti (se kterým se osoba dostaví na vrátnici+ název realizační firmy).
- PM zadá osoby z tabulky do systému vstupů BRV, v minimálním předstihu 24 hodin před požadovaným vstupem.
- OJ BAD zajistí schválení/neschválení přístupů osob na stavbu na dobu platnosti BOP.
- Po schválení/neschválení osob obdrží PM notifikační email a v případě schválení jsou osoby propsány v systému na příslušné vrátnici.
Jednorázový letištní identifikační průkaz (po schválení probíhá výdej ihned na vstupu do SRA):
- Schválení žádosti.
- Příjezd/příchod na vjezdovou vrátnici.
- Prokázání totožnosti POUZE občanským průkazem nebo cestovním pasem. Jiné doklady nejsou ze strany LP akceptovány, a to včetně e-občanky.
- Vydání jednorázového identifikačního průkazu a pod dohledem GUIDE může být osoba vpuštěna do SRA.
Osoba s doplňkovou kartou GUIDE:
Je jakýkoliv pracovník s trvalým letištním identifikačním průkazem s potřebným rozsahem vstupu (SRA – plochy), žluté nebo červeno-žlutá ID karta. Disponuje doplňkovou kartou GUIDE, kterou obdrží na vjezdové vrátnici při vstupu pracovníků do SRA. Je odpovědný za pohyb všech pracovníků, které má přidělené systémem (probíhá na vjezdové vrátnici). 1 GUIDE může doprovázet maximálně 5 osob s jednorázovým letištním průkazem. 1 GUIDE s oprávněním k řízení vozidel v neveřejné části letiště dohlíží až na 3 vozidla s jednorázovým vjezdovým povolením.
OPRÁVNĚNÁ OSOBA sama nemusí mít trvalou ID kartu. Zvolená OPRÁVNĚNÁ OSOBA musí vyplnit a letišti předat formulář „PO01cz Podpisové oprávnění“. Tento formulář zároveň slouží k založení evidence vaší společnosti na letišti a k určení OPRÁVNĚNÉ OSOBY.
- Podat žádost o vydání trvalé ID karty.
- Vyzvednout ID kartu.
Povinná školení – pro vjezd do SRA, dopravní řád
Přihlášení na školení Dopravního řádu:
Osoby, které potřebují v areálu SRA řídit vozidlo nebo ho mají doprovázet musí absolvovat školení Dopravního řádu. Veškerou agendu týkající se Bezpečnostního školení včetně termínů, postupu pro přihlášení a cen naleznete na www.skoleni-lp.cz. V rámci stavby nemusí mít řidiči vozidel, kteří vjedou do SRA školení Dopravního řádu. Pokud ho ale nemají, musí je doprovázet osoba s trvalou ID kartou a MMP nálepkou na ID kartě. Taková osoba smí doprovázet max. 3 vozidla.
BOP, DOP, POP
BOP, DOP, POP jsou povinná pro všechny osoby pohybující se areálu Letiště Václava Havla, tedy nejen v souvislosti se stavbou samotnou. Jejich nedodržení se může vázat s vážným postihem pro jednotlivce, ale i stavební společnost.
BOP - Bezpečnostní opatření letiště:
Dokument stanovující postupy a opatření, která jsou nezbytná pro zajištění bezpečnosti všech prostor letiště, zejména pak zóny SRA.
- Povinnost seznámit se s ním má každý pracovník, který ho musí podepsat. Je k němu podpisový arch.
- Vydávání dočasných (stavebních) karet. Jedná se o jednorázový úkon, tj. jednou schválená osoba má platné povolení pro vydání dočasné karty pro vstup na stavbu po celou dobu platnosti BOP.
- Zhotovitel musí dát informaci o vyplnění tabulky, a tedy požadavku na schválení vstupu min. 2 dny předem Projektovému manažerovi letiště, např. e-mailem.
- Po dobu přítomnosti na stavbě musí každý pracovník vždy viditelně ID kartu u sebe.
- Pouze osoba vybavená trvalou nebo dočasnou stavební ID kartou má oprávnění vstupu na stavbu.
- Pracovníci se smějí pohybovat pouze v prostorech souvisejících se stavbou.
DOP - Dopravní opatření letiště:
Dokument stanovující postupy a opatření, která jsou nezbytná pro zajištění bezpečného a plynulého dopravního provozu na všech komunikací na území Letiště Václava Havla.
Je k dispozici v ACC.
- V první komunikaci (nejblíže terminálu) nelze parkovat běžnými vozidly ani do něj vjíždět jinými vozidly, než těmi, které mají souvislosti se stavbou záborů, stavbou jeřábu a navážením materiálu.
- Zhotovitel si nafotí stav vozovek a přilehlých používaných komunikací před stavbou záborů.
- Zhotovitel je povinen použít přechodné svislé značení, případně upravit vodorovné značení přesně dle DOP.
- V první komunikaci musí mít Zhotovitel osobu koordinátora, který zajistí plynulý příjezd vozidel s materiálem a jeho zajetí do záboru pod jeřáb bez jakéhokoli zdržení. Tzn., že vozidlo s naváženým materiálem nebo vozidlo pro odvoz materiálu může zajet do první komunikace jen pokud je zajištěn jeho neprodlený vjezd do záboru. Průjezd přes první komunikaci nelze blokovat jinak než na dobu nezbytně nutnou pro vjetí vozidla do záboru nebo vyjetí z něho.
- Po dokončení stavební akce Zhotovitel uvede vozovku a přilehlé komunikace do stavu stejného, jako před zahájením stavby, včetně opravy vodorovného dopravného značení.
POP – Provozní opatření letiště:
Dokument stanovující postupy a opatření, která jsou nezbytná pro zajištění bezpečnosti leteckého provozu.
BOZP
Bezpečnost je číslo 1. Stavební práce probíhají za plného provozu letiště.
Po zahájení prací budou probíhat kontroly ze strany OJ BPV se zaměřením na dodržování výše zmíněných informací a bude probíhat namátková kontrola pracovníků s podepsaným podpisovým archem BOP.
V případě hrubého porušení BOP nebo postupu prací muže dojít k zastavení prací do doby, než bude zjednána náprava.
Rozpočet, čerpání a dílčí fakturace
Fakturace
Probíhá výhradně pomocí software ecPartner společnosti Callida.
- Podklad pro měsíční fakturaci připravuje Cost manager LP a ukládá do ACC.
- Dle stanoveného postupu vyplňuje/upravuje zástupce zhotovitele.
- Dokument je následně schvalován (vyjadřuje se k němu zástupce TDI, Cost manager a projektový manažer LP).
Změnové rozpočty(listy)
Probíhá výhradně pomocí software ecPartner společnosti Callida.
Podklad pro přípravu ZL připravuje Cost manager LP.
Dostupnost a znalost ecPartner:
- Je freeware – tedy volně k dispozici
- Odborné proškolení poskytuje LP zdarma
Proces vzorkování
Sdílenou tabulku s označením dodávek a požadavků na vzorkování ukládáme do ACC.
Pro schválení musí být výrobky dle platných Standardů Letiště. Pokud budou navrženy jiné výrobky, schvalovatelé posoudí jejich vlastnosti ve vztahu ke Standardům.
- Při nejasnostech výkladu Standardů kontaktujte spolupracující OJ.
- Při nejasnostech vyplývajících z projektové dokumentace komunikujte s přiděleným projektovým manažerem, který Vás spojí s příslušnými specialisty
- Podmínky pro dodání zařízení podléhají vzorkování a následné schválení výrobku – SW ACC, přístup zajistí PM.
- Podmínky pro instalaci zařízení - veškeré skryté a zabudované díly budou před zakrytím předvedeny provozovateli (OJ).
Praktické informace k požárně bezpečnostnímu opatření letiště (pBO, ZPBO)
- Požárně nebezpečné činnosti (svařovací techniky, dělení a úprava materiálu se vznikem žhavých jisker, používání propan-butanových nahřívacích hořáků apod.), lze vykonávat pouze s požadovanou odborností a vystaveným požárně bezpečnostním opatřením technika požární ochrany Letiště Praha.
- V území Letiště Praha, které zahrnuje plochy v jeho neveřejném prostoru a objekty v majetku Letiště Praha platí zákaz kouření. Zákaz je závazný pro všechny osoby pohybující se nebo vykonávají svou činnost v území LKPR. Kouřit je dovoleno pouze na vyhrazených místech. Pro používání elektronické cigarety platí stejná omezení jako pro kouření tabákových výrobků.
- Povinností dodavatele je ohlásit hasičskému záchrannému sboru LP, a.s. každý požár, vzniklý při vykonávaných činnostech a podílet se dle možností na jeho případné likvidaci.
- Před zahájením výstavby zařízení staveniště předložit požárně bezpečnostní řešení pro zařízení staveniště.
Standardy Letiště Praha
Jsou smluvně závazné a jsou k nalezení na našich stránkách: https://www.prg.aero/vyberova-a-poptavkova-rizeni
